Pasillo en una oficina moderna con paredes de cristal y puertas corredizas, decorada con lámparas negras colgantes.

Local → Vivienda

Proyecto En Proceso

Valencia, 46021

Año 2025

Superficie 300 m²

  • 300.000€

  • 166%

  • 12 Meses

Proyecto de cambio de uso y rehabilitación integral de un local comercial en el barrio de Algirós, a pocos minutos de las principales universidades de Valencia.

Ubicado en una zona plenamente consolidada, con todos los servicios y excelentes conexiones de transporte público, el entorno destaca por su alta demanda de vivienda entre estudiantes y jóvenes profesionales.

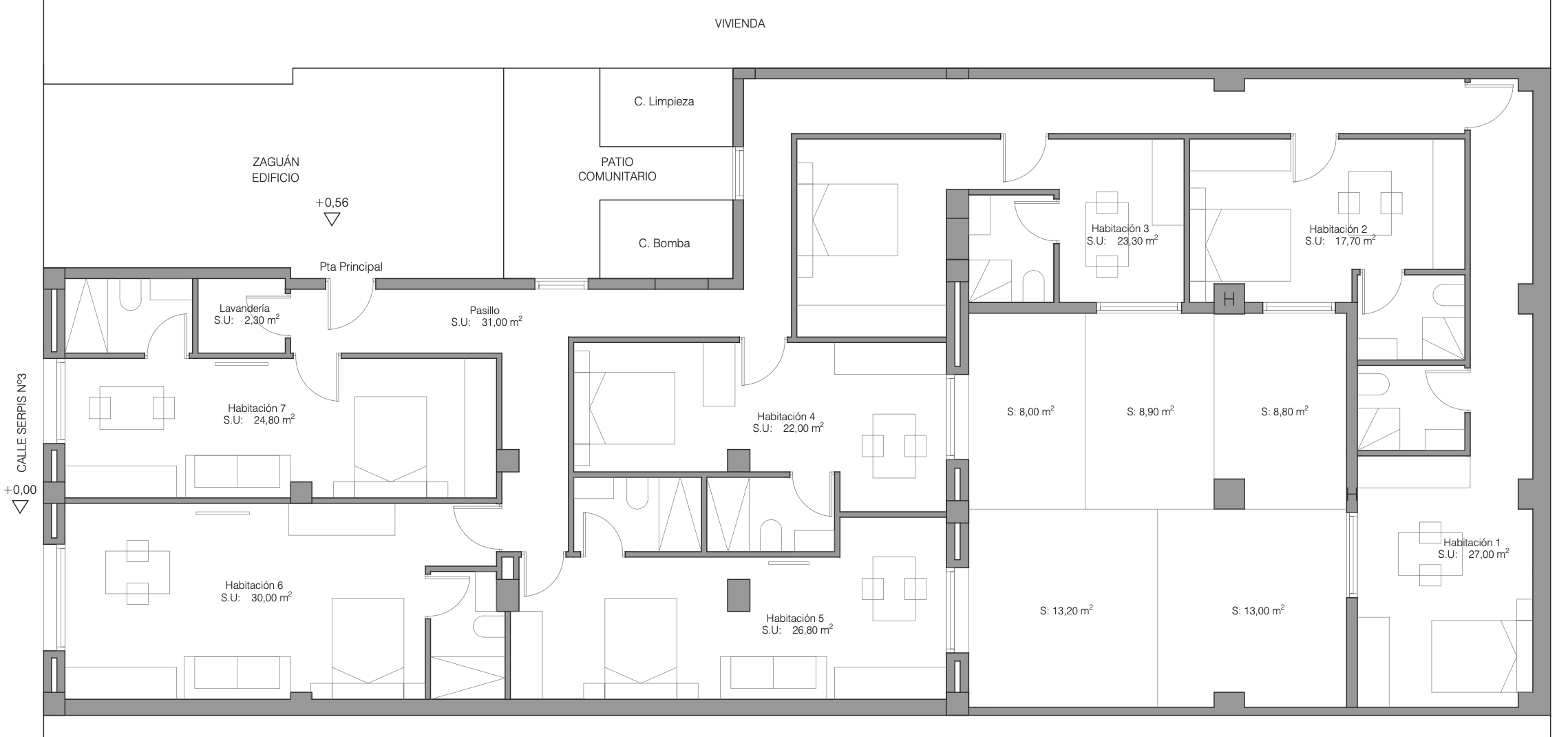
Neovi ha transformado el espacio, dando lugar a siete estudios independientes, todos ellos con luz y ventilación natural gracias a un amplio patio central. El diseño interior apuesta por una estética nórdica cálida, pensada para ofrecer confort, funcionalidad y un ambiente acogedor.

Este proyecto ha convertido un local comercial de bajo rendimiento en una vivienda muy demandada y poco disponible en la zona, ofreciendo alta rentabilidad mediante el alquiler de media y larga estancia.

Estado Original

Planos

Original

Nuevo

Construyamos
Juntos

Desde el estudio del inmueble hasta la venta, nuestro compromiso es ofrecerte una propuesta que genere el máximo valor añadido por el mínimo esfuerzo para ti. Contáctanos hoy y aprovecha nuestro estudio gratuito para transformar tu vivienda o local sin costes.

Otros Proyectos Destacados